2024-12-13
约合423万人民币 年化收益:7.15%
4LDK以上
1
800
精装
南
| 价格 | 9000万日元 | 房产类型 | 土地 |
| 建筑年代 | 建筑结构 | 1991 | |
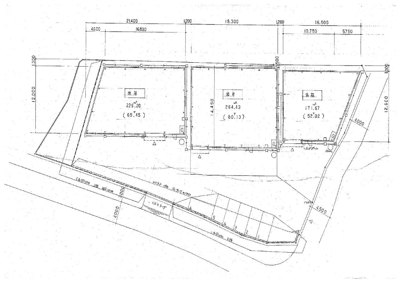
| 房产面积 | 800平米 | 土地面积 | 1305 |
| 阳台面积 | 平米 | 车库面积 | |
| 总户数 | 3 | 所在层 | 1 |
| 房型 | 4LDK以上 | 朝向 | 南 |
| 租赁情况 | 出租中 | 租金 | 6441600 |
| 管理费 | --- | 修缮费 | --- |
| 建蔽率 | 容积率 | ||
| 用途地域 | 准工业地域 | 土地权利 | 永久产权 |
| 地址 | 大阪府河内長野市加賀田367-1 | ||
| 交通 | 南海高野線 |加美の台|徒歩30分 | ||
超大土地~~交通便利~~ 三个仓库满租状态.可以进最大尺寸货柜车.
建议亚马逊或者在日本做贸易.自用货舱.近关西机场~
贸易选择 未来仓库~~或者投资回报也可以用! 目前回报率7%+
此结果仅供参考,实际应缴费以当地为准.
Touwa Stage 帮您拿到最好的贷款产品
适用于个人、法人、工作、投资、自住
| 房产价格 | 9000万日元(423万元) |
| 所有权登记税 | 111万日元(5.2万元) |
| 不动产取得税 | 135万日元(6.35万元) |
| 印花税 | 3万日元(0.14万元) |
| 司法书士费 | 19万日元(0.89万元) |
| 地震火灾保险 | 35万日元(1.65万元) |
| 中介手续费 | 297万日元(13.96万元) |
| 实际总费用 | 9600万日元(451.19万元) |

2024-12-13

2024-12-07

2024-12-07

2024-12-05

2024-12-04

2024-11-28

2024-11-28

2024-11-23

2024-11-23

2024-11-23

2024-11-22

2024-05-13

2023-10-27

2023-09-16

2023-09-09
获取更多资讯
提交成功后,我们将在1个工作日内与您联系
我们将及时与您联系,请您保持电话畅通,注意接听陌生来电
输入内容,然后按Enter / Return键提交
您可到微信中直接添加好友
备注:“姓名+地区”
Towa Stage专注日本服务品牌