2024-12-13
约合253.3万人民币 年化收益:%
4LDK以上
77.62
精装
南
2010年8月
| 价格 | 5390万日元 | 房产类型 | 公寓 |
| 建筑年代 | 2010年8月 | 建筑结构 | 木造地上2层 |
| 房产面积 | 77.62平米 | 土地面积 | 78.86 |
| 阳台面积 | 平米 | 车库面积 | |
| 总户数 | 1 | 所在层 | |
| 房型 | 4LDK以上 | 朝向 | 南 |
| 租赁情况 | 空置 | 租金 | |
| 管理费 | --- | 修缮费 | --- |
| 建蔽率 | 50% | 容积率 | 100% |
| 用途地域 | 第1种低层住居专用地域 | 土地权利 | 所有权 |
| 地址 | 东京都杉并区清水3丁目 | ||
| 交通 | JR中央线/东京地铁丸之内线荻窪站徒步23分钟 西武新宿线井荻站徒步12分钟 | ||
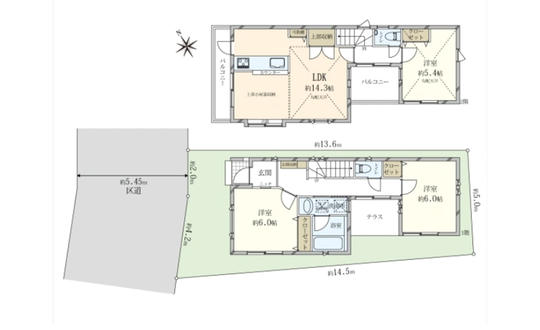
日本东京都杉并区清水房产一户建楼盘项目,可以贷款购买。2010年8月竣工,正面是约5米宽的道路,车辆通行方便。一户建为木造2层建筑,土地面积78.86平米,房产面积77.62平米。独立永久产权(附件可获取更多资料)。客厅有约6.4平米的阁楼,收纳空间丰富。客厅平均天花板高约2.8米,二层部分卧室平均天花板高约3米。开放式厨房,附带食洗器,防震架收纳。LD地暖,带浴室干燥机。室内通风良好,阳光充足,起居室明亮。关于布局,客厅和所有的居室都朝南。凹形阳台作为隐私空间,可以作为花园和孩子的游乐场所。
东京 杉并区杉並区位于东京23区的西部。杉並区属于治安较好的居住区。区内的久我山、浜田山等地都是有名的高级住宅区。杉並区的空室率为10.3%,与东京都平均11.2%和全日本平均13.5%相比空室率较低,投资风险相对较小。
区内可以利用人气线路的中央线,到国内第一的交通枢纽新宿站很便捷。也可以利用地下铁和私铁,是交通十分便利的地区。JR线和地下铁线路的荻窪站、高円寺站也是人气的投资地区。
杉並区的地价在东京都内位于中游,地价根据地区不同的变动幅度也比较小。荻窪、阿佐ヶ谷、笹塚、高円寺等人气便捷的地区地价也不会很高。区内有東京女子大学、高千穂大学、明治大学等学校,可以根据地区选择进行针对学生群体的租赁投资。
此结果仅供参考,实际应缴费以当地为准.
Touwa Stage 帮您拿到最好的贷款产品
适用于个人、法人、工作、投资、自住
| 房产价格 | 5390万日元(253.33万元) |
| 所有权登记税 | 66万日元(3.12万元) |
| 不动产取得税 | 81万日元(3.8万元) |
| 印花税 | 3万日元(0.14万元) |
| 司法书士费 | 19万日元(0.89万元) |
| 地震火灾保险 | 21万日元(0.99万元) |
| 中介手续费 | 178万日元(8.36万元) |
| 实际总费用 | 5758万日元(270.63万元) |

2024-12-13

2024-12-07

2024-12-07

2024-12-05

2024-12-04

2024-11-28

2024-11-28

2024-11-23

2024-11-23

2024-11-23

2024-11-22

2024-05-13

2023-10-27

2023-09-16

2023-09-09
获取更多资讯
提交成功后,我们将在1个工作日内与您联系
我们将及时与您联系,请您保持电话畅通,注意接听陌生来电
输入内容,然后按Enter / Return键提交
您可到微信中直接添加好友
备注:“姓名+地区”
Towa Stage专注日本服务品牌