2024-12-13
约合558.3万人民币 年化收益:%
2LDK
8階
58.51
精装
南東
2014年2月
| 价格 | 11880万日元 | 房产类型 | 公寓 |
| 建筑年代 | 2014年2月 | 建筑结构 | 钢筋混凝土 |
| 房产面积 | 58.51平米 | 土地面积 | |
| 阳台面积 | 7.2平米 | 车库面积 | |
| 总户数 | 84戸 | 所在层 | 8階 |
| 房型 | 2LDK | 朝向 | 南東 |
| 租赁情况 | 空置 | 租金 | |
| 管理费 | 16,300日元/月 | 修缮费 | 14,050日元/月 |
| 建蔽率 | 容积率 | ||
| 用途地域 | 商業地域 (1種住居) | 土地权利 | 所有权 |
| 地址 | 東京都港区白金台2丁目 | ||
| 交通 | 从都营浅草线高轮台站步行1分钟 从山手线“五反田”站步行11分钟 从京急本线“品川”站步行11分钟 | ||
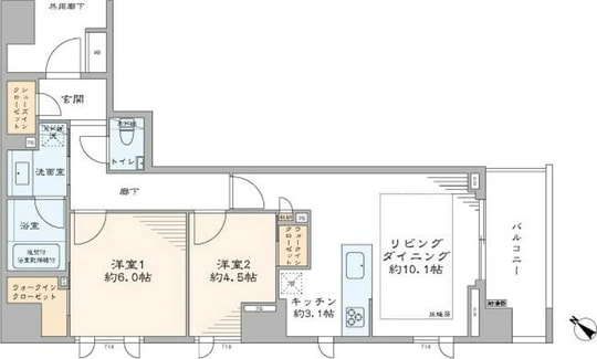
两居室豪华装修,面积58.51平米,赠送阳台7.2平米,房间采光通风性好,客厅空间大,室内整洁,木质地板,卫浴独立,地暖设置,有足够的收纳空间,有送货箱、24小时垃圾处理、自行车存放处、电梯、摩托车存放处、有停车位(包括附近)、自动锁门、监控摄像头,对讲机带电视监视器,允许携带宠物,角落住宅单元,带烘干机的浴室,面对面厨房、洗碗机/烘干机、垃圾处理,步入式衣橱,隔震结构,1公里以内有小学,交通便利。
电梯
智能信箱柜
停车场
卫浴分离
全自动浴室
浴缸再加热式
浴室干燥机
智能坐便器
独立洗面台
附带煤气灶
两灶台
收纳空间
全居室收纳
壁橱
鞋柜
自动锁
阳台
东京都港区是位于东京中部的特别区。 它对应于东京的市中心。从霓虹闪烁的摩天大楼到历史悠久的寺庙,日本首都东京融合了超现代与传统。 华丽的明治神宫以其高耸的鸟居和神社森林而闻名。 故宫坐落在一个大型公共花园中。 这座城市拥有许多博物馆,展品范围从古典艺术(东京国立博物馆)到经过修复的歌舞伎剧院(江户东京博物馆)。
此结果仅供参考,实际应缴费以当地为准.
Touwa Stage 帮您拿到最好的贷款产品
适用于个人、法人、工作、投资、自住
| 房产价格 | 11880万日元(558.36万元) |
| 所有权登记税 | 146万日元(6.87万元) |
| 不动产取得税 | 178万日元(8.38万元) |
| 印花税 | 6万日元(0.28万元) |
| 司法书士费 | 19万日元(0.89万元) |
| 地震火灾保险 | 46万日元(2.18万元) |
| 中介手续费 | 392万日元(18.43万元) |
| 实际总费用 | 12668万日元(595.38万元) |

2024-12-13

2024-12-07

2024-12-07

2024-12-05

2024-12-04

2024-11-28

2024-11-28

2024-11-23

2024-11-23

2024-11-23

2024-11-22

2024-05-13

2023-10-27

2023-09-16

2023-09-09
获取更多资讯
提交成功后,我们将在1个工作日内与您联系
我们将及时与您联系,请您保持电话畅通,注意接听陌生来电
输入内容,然后按Enter / Return键提交
您可到微信中直接添加好友
备注:“姓名+地区”
Towa Stage专注日本服务品牌