2024-12-13
约合163.5万人民币 年化收益:%
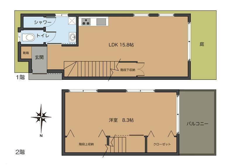
1LDK
地上2階建
43.79
精装
2021年6月
| 价格 | 3480万日元 | 房产类型 | 一户建 |
| 建筑年代 | 2021年6月 | 建筑结构 | 木造 |
| 房产面积 | 43.79平米 | 土地面积 | 47.8 |
| 阳台面积 | 平米 | 车库面积 | |
| 总户数 | 所在层 | 地上2階建 | |
| 房型 | 1LDK | 朝向 | |
| 租赁情况 | 空置 | 租金 | |
| 管理费 | --- | 修缮费 | --- |
| 建蔽率 | 60% | 容积率 | 300% |
| 用途地域 | 準工業地域 | 土地权利 | 所有権 |
| 地址 | 東京都文京区大塚5丁目 | ||
| 交通 | 東京メトロ丸ノ内線 「新大塚」车站 步行5分 東京メトロ有楽町線 「護国寺」车站 步行6分 山手線 「大塚」车站 步行13分 | ||
2021年6月11日重新装修完成,步行2分钟就到了附近超市,购物很方便,3条交通线路,交通便利性好。
客厅内已安装新空调。随时看房,空置中,可随时拎包入住。
卫浴分离
浴室干燥机
智能坐便器
独立洗面台
收纳空间
全居室收纳
壁橱
鞋柜
自动锁
阳台
东京,位于日本关东平原中部,是面向东京湾的国际大都市,日本三大都市圈之一东京都市圈的中心城市。 “东京”狭义上指东京都、旧东京府或东京都区部(旧东京市),亦可泛指东京都市圈。东京是江户幕府的所在地,江户在庆应4年7月(1868年9月)改名为东京。
在明治2年3月28日,日本的都(みやこ)从京都迁移到东京。自德川幕府时代以来开始成为日本主要都市之一,明治维新时期改名为东京后,更发展为日本政治、经济、文化、交通等众多领域的枢纽中心。经过二战后的继续发展,东京不仅成为世界商业金融、流行文化与时尚重镇,亦为世界经济发展度与富裕程度最高的都市之一。 东京也是亚洲第一大城市 。
正式的行政区划定义上,东京仅限于东京都,与道、府、县同为日本的一级行政区,辖区包含东京都区部、多摩地方与伊豆群岛、小笠原群岛等离岛;其中,东京都区部为日本中央政府所在地。东京都同时也囊括了日本最南端(冲之鸟礁)和最东端(南鸟岛)等地理极点,拥有日本各都道府县中最多的人口数,同时也是日本人口密度最高的都道府县。
此结果仅供参考,实际应缴费以当地为准.
Touwa Stage 帮您拿到最好的贷款产品
适用于个人、法人、工作、投资、自住
| 房产价格 | 3480万日元(163.56万元) |
| 所有权登记税 | 43万日元(2.01万元) |
| 不动产取得税 | 52万日元(2.45万元) |
| 印花税 | 1万日元(0.05万元) |
| 司法书士费 | 19万日元(0.89万元) |
| 地震火灾保险 | 14万日元(0.64万元) |
| 中介手续费 | 115万日元(5.4万元) |
| 实际总费用 | 3723万日元(175万元) |

2024-12-13

2024-12-07

2024-12-07

2024-12-05

2024-12-04

2024-11-28

2024-11-28

2024-11-23

2024-11-23

2024-11-23

2024-11-22

2024-05-13

2023-10-27

2023-09-16

2023-09-09
获取更多资讯
提交成功后,我们将在1个工作日内与您联系
我们将及时与您联系,请您保持电话畅通,注意接听陌生来电
输入内容,然后按Enter / Return键提交
您可到微信中直接添加好友
备注:“姓名+地区”
Towa Stage专注日本服务品牌