2024-12-13
约合258.5万人民币 年化收益:%
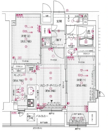
2LDK
11
54.68
精装
东南
2008
| 价格 | 5500万日元 | 房产类型 | 公寓 |
| 建筑年代 | 2008 | 建筑结构 | 钢筋水泥 |
| 房产面积 | 54.68平米 | 土地面积 | |
| 阳台面积 | 5.16平米 | 车库面积 | |
| 总户数 | 70 | 所在层 | 11 |
| 房型 | 2LDK | 朝向 | 东南 |
| 租赁情况 | 空置 | 租金 | |
| 管理费 | 13700日元/月 | 修缮费 | 5500日元/月 |
| 建蔽率 | 容积率 | ||
| 用途地域 | 土地权利 | 永久所有产权 | |
| 地址 | |||
| 交通 | ゆりかもめ线 芝浦ふ頭 站 徒步10分钟 JR 山手线 田町 站 徒步15分钟 | ||
位于有名的富人区里,东京湾里 临近彩虹桥 环境优美。
非常适合居住。
电梯
智能信箱柜
停车场
卫浴分离
全自动浴室
浴缸再加热式
浴室干燥机
智能坐便器
独立洗面台
附带煤气灶
两灶台
收纳空间
全居室收纳
壁橱
鞋柜
自动锁
阳台
东京都港区,全日本最有名的富人区。
此结果仅供参考,实际应缴费以当地为准.
Touwa Stage 帮您拿到最好的贷款产品
适用于个人、法人、工作、投资、自住
| 房产价格 | 5500万日元(258.5万元) |
| 所有权登记税 | 68万日元(3.18万元) |
| 不动产取得税 | 83万日元(3.88万元) |
| 印花税 | 3万日元(0.14万元) |
| 司法书士费 | 19万日元(0.89万元) |
| 地震火灾保险 | 21万日元(1.01万元) |
| 中介手续费 | 182万日元(8.53万元) |
| 实际总费用 | 5875万日元(276.13万元) |

2024-12-13

2024-12-07

2024-12-07

2024-12-05

2024-12-04

2024-11-28

2024-11-28

2024-11-23

2024-11-23

2024-11-23

2024-11-22

2024-05-13

2023-10-27

2023-09-16

2023-09-09
获取更多资讯
提交成功后,我们将在1个工作日内与您联系
我们将及时与您联系,请您保持电话畅通,注意接听陌生来电
输入内容,然后按Enter / Return键提交
您可到微信中直接添加好友
备注:“姓名+地区”
Towa Stage专注日本服务品牌