2024-12-13
约合611万人民币 年化收益:%
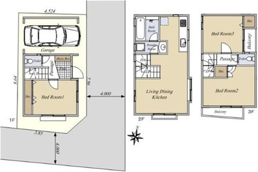
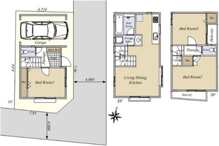
3LDK
共3层
73.9
精装
东南
2000年2月
| 价格 | 13000万日元 | 房产类型 | 一户建 |
| 建筑年代 | 2000年2月 | 建筑结构 | 木造地上3层 |
| 房产面积 | 73.9平米 | 土地面积 | 45.34 |
| 阳台面积 | 平米 | 车库面积 | |
| 总户数 | 1 | 所在层 | 共3层 |
| 房型 | 3LDK | 朝向 | 东南 |
| 租赁情况 | 空置 | 租金 | |
| 管理费 | --- | 修缮费 | --- |
| 建蔽率 | 60% | 容积率 | 200% |
| 用途地域 | 第1种住居地域 | 土地权利 | 所有权 |
| 地址 | 东京都港区南青山1 | ||
| 交通 | 东京Metro千代田线“乃木坂”300米 | ||
东京都港区南青山1一户建,2000年2月建成的木制三层建筑。东京Metro千代田线“乃木坂”站步行300米。东京Metro日比谷线·都营大江户线“六本木”站步行800米
东京 港区港区位于东京23区中央偏南部。该区是拥有最多企业总部的地区,是日本企业的中心。虎之门、新桥、芝为重要的办公商区,经济活动十分活跃。青山、赤坂等商业地区;六本木等娱乐中镇;麻布、白金台等高级住宅区;汐留、台场等大规模开发区,是该区展现各种不同风貌的代表。东宫御所、芝公园、白金台的自然教育园等是丰富的自然环境。驻日大使馆与外资企业的大量进驻,让港区的外国人居住者比例非常高。
此结果仅供参考,实际应缴费以当地为准.
Touwa Stage 帮您拿到最好的贷款产品
适用于个人、法人、工作、投资、自住
| 房产价格 | 13000万日元(611万元) |
| 所有权登记税 | 160万日元(7.52万元) |
| 不动产取得税 | 195万日元(9.17万元) |
| 印花税 | 6万日元(0.28万元) |
| 司法书士费 | 19万日元(0.89万元) |
| 地震火灾保险 | 51万日元(2.38万元) |
| 中介手续费 | 429万日元(20.16万元) |
| 实际总费用 | 13860万日元(651.4万元) |

2024-12-13

2024-12-07

2024-12-07

2024-12-05

2024-12-04

2024-11-28

2024-11-28

2024-11-23

2024-11-23

2024-11-23

2024-11-22

2024-05-13

2023-10-27

2023-09-16

2023-09-09
获取更多资讯
提交成功后,我们将在1个工作日内与您联系
我们将及时与您联系,请您保持电话畅通,注意接听陌生来电
输入内容,然后按Enter / Return键提交
您可到微信中直接添加好友
备注:“姓名+地区”
Towa Stage专注日本服务品牌