2024-12-13
约合172.9万人民币 年化收益:%
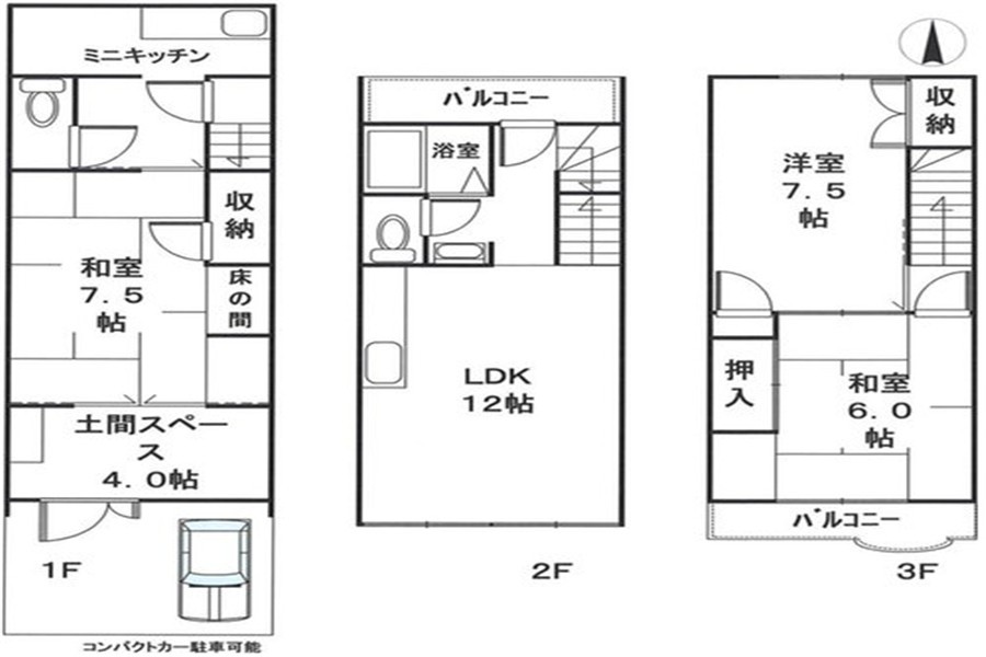
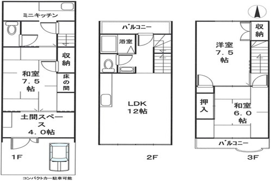
3LDK
共3层
86.62
精装
西南
1976年12月
| 价格 | 3680万日元 | 房产类型 | 一户建 |
| 建筑年代 | 1976年12月 | 建筑结构 | 木造地上3层 |
| 房产面积 | 86.62平米 | 土地面积 | 48.32 |
| 阳台面积 | 平米 | 车库面积 | |
| 总户数 | 1 | 所在层 | 共3层 |
| 房型 | 3LDK | 朝向 | 西南 |
| 租赁情况 | 空置 | 租金 | |
| 管理费 | --- | 修缮费 | --- |
| 建蔽率 | 60% | 容积率 | 200% |
| 用途地域 | 第1种住居地域 | 土地权利 | 所有权 |
| 地址 | 大阪府大阪市天王寺区大道2丁目 | ||
| 交通 | JR大阪环状线“寺田町”站1000米 | ||
大道2丁目 一户建,1976年12月建成木制二层建筑。距JR大阪环状线“寺田町”站1000米。周边生活设施齐全,出行方便。
大阪市
位于日本西部近畿地方大阪府的都市,是大阪府的府厅所在地,也是政令指定都市之一。大阪市面积223平方公里,总人口约有267万人,是日本次于东京、横滨人口第三多的城市。GDP位列亚洲第二,仅次于东京,世界第六位。
"大阪"在古代多称为"大坂",而"大坂"一词最早出现在室町时代。自奈良时代开始,大阪就因其临海的地理位置成为贸易港口。丰臣秀吉修建大阪城,并以大阪作为丰臣政权的统治核心城市。在江户时代,大阪和京都江户并称为"三都",是当时日本经济活动最为旺盛的商业都市。在战后,仍是西日本的大都市。
此结果仅供参考,实际应缴费以当地为准.
Touwa Stage 帮您拿到最好的贷款产品
适用于个人、法人、工作、投资、自住
| 房产价格 | 3680万日元(172.96万元) |
| 所有权登记税 | 45万日元(2.13万元) |
| 不动产取得税 | 55万日元(2.59万元) |
| 印花税 | 1万日元(0.05万元) |
| 司法书士费 | 19万日元(0.89万元) |
| 地震火灾保险 | 14万日元(0.67万元) |
| 中介手续费 | 121万日元(5.71万元) |
| 实际总费用 | 3936万日元(185万元) |

2024-12-13

2024-12-07

2024-12-07

2024-12-05

2024-12-04

2024-11-28

2024-11-28

2024-11-23

2024-11-23

2024-11-23

2024-11-22

2024-05-13

2023-10-27

2023-09-16

2023-09-09
获取更多资讯
提交成功后,我们将在1个工作日内与您联系
我们将及时与您联系,请您保持电话畅通,注意接听陌生来电
输入内容,然后按Enter / Return键提交
您可到微信中直接添加好友
备注:“姓名+地区”
Towa Stage专注日本服务品牌